1. 黄瓜视频APP下载版最新,黄瓜视频免费观看入口,黄瓜色视频在线观看,黄瓜视频APP色版成人污下载

      旋转黄瓜视频免费观看入口 1 2 3
      热门关键词: 黄瓜色视频在线观看系列、 冷卷法兰系列、 橡胶接头管系列
      黄瓜视频免费观看入口系列
      黄瓜视频免费观看入口
      TWB/ZTWB型注油式直流介质无推
      非金属黄瓜视频免费观看入口硅胶蒙皮
      JR型通用金属软管
      不锈钢波纹管
      QB型球型黄瓜视频免费观看入口
      黄瓜色视频在线观看系列
      黄瓜色视频在线观看
      不锈钢黄瓜色视频在线观看
      A型刚性黄瓜色视频在线观看
      B型刚性黄瓜色视频在线观看
      C型刚性黄瓜色视频在线观看
      02S404刚性黄瓜色视频在线观看
      橡胶接头系列
      橡胶接头
      JGD单球体可曲挠橡胶接头
      JGD型双球体可曲挠橡胶接头
      KXT单球体可曲挠橡胶接头
      KXT双球体可曲挠橡胶接头
      GJQ(X)-SF双球体可曲挠橡胶接头
      冷卷法兰系列
      冷卷法兰
      辽宁法兰式鸭嘴阀厂家报价
      新疆内置式鸭嘴阀安装图集
      山西法兰式鸭嘴阀的优良特性
      湖北卡箍式排污鸭嘴阀安装图集
      江苏套接式橡胶鸭嘴阀生产厂家
      伸缩接头系列
      双法兰限位伸缩接头
      VSSJA-1型单法兰限位伸缩接头
      B2F型双法兰松套限位伸缩接头
      BF型单法兰松套限位伸缩接头
      AY型压盖式松套伸缩接头
      SSJB-3(BY)压盖式松套限位伸缩
      传力接头系列
      传力接头
      VSSJAFG型单法兰松套传力接头
      VSSJAF型双法兰松套传力接头
      VSSJAFC可拆式双法兰松套传力接
      CF型单法兰松套传力接头
      C2F型双法兰松套传力接头
      伸缩器系列
      伸缩器
      SSQ型铸铁伸缩器
      球墨铸铁伸缩器
      CS型热力管道伸缩器
      SF钢制伸缩器
      RS型柔性套管式伸缩器
      联系黄瓜视频APP下载版最新查看更多+

      地 址: 河南省巩义市西村工业区

      联系人: 庞经理

      手 机: 15617617287

                 15038001853

      E_mail: gyltgd@126.com

      网 址: http://www.dcczyzsls.com/

      http://www.gyltgdc.com/

      伸缩接头系列

      双法兰限位伸缩接头

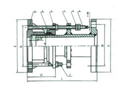
      双法兰限位伸缩接头型号VSSJA-2或B2F型,管道两边法兰的连接方式,安装在管道上可以和阀门连接,既补偿了管道的伸缩量又对阀门的维修提供了方便。 VSSJA-2型双法兰限位伸缩接头是由松套伸缩接头和一个法兰限位短管组合而成。双法兰限位伸缩接头能防止管道因超量位移导致补偿接头的泄漏和损坏,主要用于在允许位移范围内吸收轴向位移和承受轴向压力推力的管道松套连接。

      全国24小时销售热线:15617617287

      双法兰限位伸缩接头应用范围
      VSSJA-2型双法兰限位伸缩接头适用于输送海水、淡水、冷热水、饮用水、生活污水、原油、燃油、润滑油、成品油、空气、煤气、温度不高于250度的蒸汽和颗粒粉状等介质。
      双法兰限位伸缩接头功能介绍
      双法兰限位伸缩接头型号VSSJA-2或B2F型,管道两边法兰的连接方式,安装在管道上可以和阀门连接,既补偿了管道的伸缩量又对阀门的维修提供了方便。 VSSJA-2型双法兰限位伸缩接头是由松套伸缩接头和一个法兰限位短管组合而成。双法兰限位伸缩接头能防止管道因超量位移导致补偿接头的泄漏和损坏,主要用于在允许位移范围内吸收轴向位移和承受轴向压力推力的管道松套连接。

      双法兰限位伸缩接头安装说明
      VSSJA-2型双法兰限位伸缩接头适用于两边均与法兰连接,安装时调整产品两端与法兰的连接长度,对角依次均匀拧紧压盖螺栓,再调整好限位螺母,这样就能让管道在伸缩量范围内可以自由伸缩,锁定伸缩量,确保管道的安全运行


      。

      VSSJA-2型双法兰限位伸缩接头材料表

      名称
      数量
      材料
      1
      本体
      1
      QT400-15、Q235A、ZG230-450、20
      2
      密封圈
      1
      NBR
      3
      压盖
      1
      QT400-15、Q235A、ZG230-450、20
      4
      限位短管法兰
      1
      Q235A、20、16Mn
      5
      螺母
      4n
      Q235A、20、1Cr18Ni9Ti
      6
      长螺柱
      n
      Q235A、35、1Cr18Ni9Ti
      7
      螺柱
      n
      Q235A、35、1Cr18Ni9Ti

      VSSJA-2型双法兰限位伸缩接头安装数据表

      公称通径
      管子外径
      外形尺寸
      伸缩量
      法兰连接尺寸
      Dw
      L
      L1
      0.6MPa
      1.0MPa
      D
      D1
      n-d。
      D
      D1
      n-d。
      65
      76
      340
      105
      50
      160
      130
      4-¢14
      185
      145
      4-¢18
      80
      89
      190
      150
      4-¢18
      200
      160
      8-¢18
      100
      108
      210
      170
      220
      180
      114
      125
      133
      240
      200
      8-¢18
      250
      210
      140
      150
      159
      265
      225
      285
      240
      8-¢22
      168
      200
      219
      320
      280
      340
      295
      250
      273
      370
      335
      12-¢18
      395
      350
      12-¢22
      300
      325
      350
      130
      65
      440
      395
      12-¢22
      445
      400
      350
      377
      490
      445
      505
      460
      16-¢22
      400
      426
      540
      495
      16-¢22
      565
      515
      16-¢26
      450
      480
      595
      550
      615
      565
      20-¢26
      500
      530
      645
      600
      20-¢22
      670
      620
      600
      630
      755
      705
      20-¢26
      780
      725
      20-¢30
      700
      720
      860
      810
      24-¢26
      895
      840
      24-¢30
      800
      820
      590
      220
      130
      975
      920
      24-¢30
      1015
      950
      24-¢33
      900
      920
      1075
      1020
      1115
      1015
      28-¢33
      1000
      1020
      1175
      1120
      28-¢30
      1230
      1160
      28-¢36
      1200
      1220
      1405
      1340
      32-¢33
      1455
      1380
      32-¢40
      1400
      1420
      1630
      1560
      36-¢36
      1675
      1590
      36-¢42
      1500
      1520
      1730
      1660
      -
      -
      -
      1600
      1620
      1830
      1760
      40-¢36
      1915
      1820
      40-¢48
      1800
      1820
      2045
      1970
      44-¢40
      2115
      2020
      44-¢48
      2000
      2020
      2265
      2180
      48-¢42
      2325
      2230
      48-¢48
      2200
      2220
      2475
      2390
      52-¢42
      2550
      2440
      52-¢56
      2400
      2420
      2685
      2600
      56-¢42
      2760
      2650
      56-¢56


      网站地图